陽ざしと自然を感じる広々 LDKの二世帯住宅リフォーム

築80年の店舗兼住居で、ご両親と同居されているS様ご夫妻。本格的に二世帯住宅へ改修するにあたり、新しくつくられた若世帯のためのLDKは、小さなお子様達と過ごすのにもぴったりの優しく明るい空間です。リビングの一角は、お子様が遊べるファミリースペースとし、アクセントウォールに淡いグレージュのミッフィー柄のクロスを貼りました。遠目にはドットに見えるさりげない柄は奥様の一番のお気に入りです。

「リフォームしてから、子ども達が積極的に片付けてくれるようになりました」と言う奥様ご自身も、楽しく家事ができるようになったと言います。また、ご主人も台所に立つのが大好きになり、食器洗いをしながら子ども達を見ている時間が楽しいのだとか。
カメラマンであるご主人は、お子様の写真を撮っているうち、日々表情を変えていくリビングの光に惹きつけられました。「新しく付けた窓の位置が絶妙で、朝の空や夕焼け、夜は通りの車のライトが動く感じがいいんですよ! 幻想的な朝の光が夕方にかけて表情が変わり、常に新しい発見があります」とリフォーム前は悩みの種だったキッチンからの西陽を避け窓の位置を変えたことが思わぬ効果を生むことになりました。

過去の増改築では店舗を主にリフォームしてきたS様邸。今回、住居の大改修を決められたのは「プライベートエリアの質を高めることで仕事の質も上がり生活が豊かになる」との思いがあってのこと。その思いどおり、日々の暮らしを大切に営むようになり、仕事の質も上がったと言います。

家族で過ごすダイニングの椅子は、4脚それぞれが違うデザインのもの。好きな椅子を気分で選んで座れる決まりになっています。「子ども達にも、その時々の思いを大切に行動できるようになってほしい」との思いが込められた空間は、ご家族の新しくかけがえない日々を穏やかに包んでくれることでしょう。
PLAN
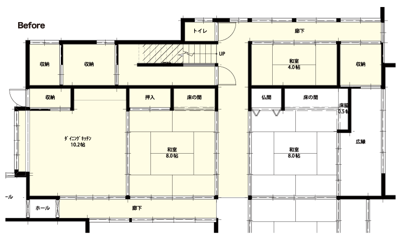
間取りは広々LDKに洗面室、浴室を新設。リビングの一角にはお子さまたちが遊べるファミリースペースを設けました。


モデル: 池端忍 / ヘアメイク: アトリエNoel Hair Make Team / 撮影: dot DUCK株式会社
オリバーリフォームの施工事例はこちら

※コメントは承認制です










コメントをどうぞ