菅野結以×OLIVER スペシャルコラボ住宅 アーバンリトリートハウスRITORITO特集

菅野結以さんが住宅をプロデュース
離島でのリトリート気分を、家の中で感じられたら――
菅野結以さんのそんな想いを、オリバーが叶えました!

雑誌「LARME」「PECHE」などで活躍するモデル兼クリエイターである、菅野結以さんとオリバーがコラボレーション!
自らアパレルブランド「Crayme,」やコスメブランド「baby+A」をプロデュースし、独自の世界観と美意識で、多くの企業とのコラボを展開してきた菅野さんですが、「家」を手掛けるのは初めてのこと。
家は、人生において最も多くの時間を過ごす場所。だから、癒やしの場であってほしい。森の中の自然や、離島での旅気分を、家の中で感じられたら
そんな菅野さんの“理想の家”。それが、アーバンリトリートハウス「RITORITO」です。
コンセプトは『 住む解放区』
コンセプトは「住む解放区」。家に帰ってきたときに、心が解放されるような空間づくりにこだわりました。高い天井や、ガラス張りのLDK空間、屋外サウナ付きのプライベートガーデンなど、家の中にいながら、風や光を存分に感じられる工夫が詰まっています。
また、一方では、ファッションやデザイン、サウナ、音楽など、菅野さん自身の「好き」を盛り込んだ空間にもなっています。仕事や家事、育児が忙しくても、好きなことを諦めたくない、そんな全ての女性に向けて、おしゃれや趣味を楽しみ、家での時間を豊かにするエッセンスが散りばめられた住まいです。


打ち合わせ風景をYoutubeで公開中!
まるで離島に行ったときのような
こころの解放が味わえる住まい

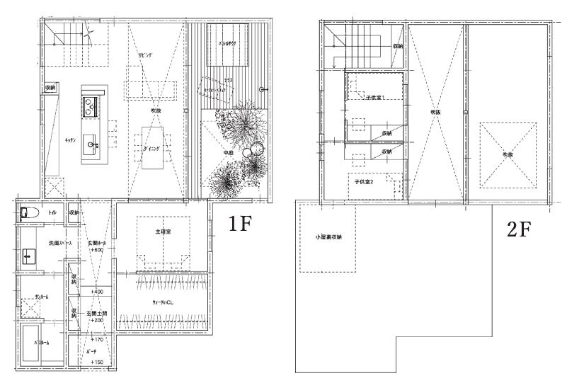
別荘地に佇むゲストハウスのような外観。シャープな片流れの屋根のラインに沿ったスリットが独特な洗練されたデザインです。吹き抜けの高い天井と高窓のある玄関は、足を踏み入れた瞬間から、ダイナミックな解放感を感じさせます。
「風や光、空を毎日感じられる、森の中の家」のイメージをベースに、屋内と屋外の境が融合したような一体感を目指し、さまざまな工夫が凝らされています。最も特徴的なのは、サウナのある中庭です。中庭には、大きな天窓のついた屋根と2箇所の開口があり、プライバシーを確保しつつ空や風を感じられるつくり。ウッドデッキと一体化したような、木材の温もりを感じられるバレルサウナは、外気浴も楽しめる特別な空間です。中庭で涼んだらそのまま寝室に行ける間取りも快適。

コロンとした見た目もかわいい、秘密基地のようなバレルサウナ
もうひとつのこだわりは、5mの天井高。同じ広さであっても天井が高くなるだけで、解放感がぐっと高まります。さらに、閉鎖的な空間を可能な限り削ぎ落とすため、LDKにはガラスを多用。中庭に面した壁一面のガラス張りと、天井から床まで届く5mのカーテンは圧巻です。


高さと奥行きともに、のびのびとした広がりを感じるダイナミックなLDK空間
また、大容量のシューズクロークやウォークインクローゼット、女優ミラー、ワークルームや屋根裏収納など、女性目線の機能性も考えられています。ファッションリーダーの菅野さんがセレクトした装備たちは、利便性だけでなく、気分も上げてくれるものばかり。
「自然の美しさと人の手でつくるデザインの美を両立させたい」という菅野さんの狙いを受け、リズミカルなオープン階段、窓の位置や内装材など、構成の美しさが、外界の景観を引き立てます。スタイリッシュでありながら、自然体でいられる、家全体が、そんな上質な整い空間となりました。
PLAN

撮影: dot DUCK株式会社
オリバー建築設計の施工事例はこちら
※コメントは承認制です









コメントをどうぞ