程よい距離感が心地よい、 黒×グレー×木目のスタイリッシュな二世帯リノベーション

「新築になったみたい! 初めてのマイホームができた気分で暮らせています」。そう語るのは、大人5人・子ども5人の大家族ならではの賑やかな毎日を送るF様ご一家です。
リフォームで最も実現したかったのは、大家族が程良い距離感で暮らせる住まいづくりです。これまでは居間がひとつしかなく、団らんする部屋も狭かったため、リビングを分けて広くしたいという要望がありました。そこで、あまり使われていなかった二間続きの和室を若世帯の新しいLDKへと大改修。10人家族がゆったりと暮らせる広々としたLDKを2つ確保することができました。

内装のテーマは、奥様の希望である「黒を基調にしたスタイリッシュな空間」です。黒・グレー・木目の3色で統一されたインテリアは、落ち着きがあり洗練された印象。特にショールームでひと目惚れしたというトクラスの黒いキッチンはLDKの主役となり、日中は子どもたちと賑やかに、夜は夫婦でお酒を楽しむ落ち着いた空間として、多彩な表情を見せています。
リビングの一角に設けられたパウダースペースは、奥様のお気に入りポイントです。これまで1階と2階を行き来して身支度していたのを、1階で完結できるようにしたいとのご要望により実現。リビング側から見えないようレイアウトにも配慮しました。奥様自らが選び購入されたLEDミラーが、毎日使う場所を心ときめく空間に仕上げています。


リビング側からは見えないようレイアウトされたパウダースペース。ロールスクリーンでさっと目隠しすることもできます
家族の多さを考慮した設計も特徴的です。これまで洗濯物を干す場所の確保も大変だったことから、約8帖の広々としたランドリールームを計画し、真向かいにはウォークインクローゼットを設けました。これにより、洗濯から収納までの時短を叶えました。さらに、玄関まわりにはシューズクローゼットとファミリー玄関を設け、家族と来客の動線を分けることで使いやすく整理された空間を実現。家族の多い住まいでも、玄関がスッキリと保てる工夫を凝らしています


廊下を挟んで向かいにあるランドリールームとウォークインクローゼット。ドアを開けてすぐ乾いた洗濯物を収納できる


主玄関はスッキリ美しく。ファミリー玄関は大容量のオープン収納になっています
もともとは階段が2つあり、2階に段差がある独特な構造。段差は無理に解消せず、階段を1つに減らして空間を確保し、段差部分はステップフロアを設けることで対応しました。小さなお子様と接する時間を考慮し、3つある子ども部屋のうちの1つは夫婦の寝室と繋げ、将来仕切れるように設計しています。

リフォーム後、設備の一新と断熱性の向上により、暮らしの快適性は大幅に改善。お子様たちが自宅に友達を呼ぶ機会も増えたそうです。特に「キッチンが別になったことで、習い事で帰りが遅くなる子どもの食事の用意など、時間を気にせず使えるようになりました」と、生活リズムの違いにも柔軟に対応できる環境が整いました。大家族がそれぞれに心地よく暮らせる距離を保ちながら、一体感も感じられる。そんな“ 住まいの理想形 “を体現したリノベーションとなりました。


トクラスの黒いキッチン。繋ぎ目のコーキングと段差がないハイバックカウンターも大きな採用ポイントでした
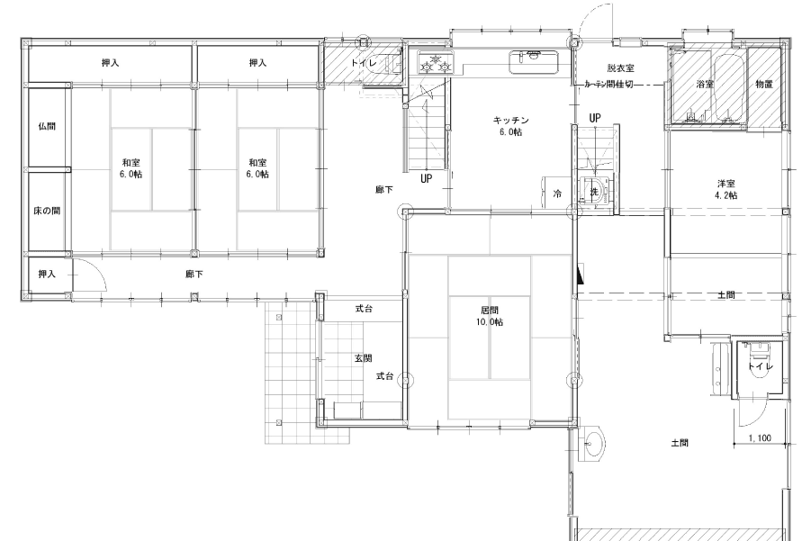
Before

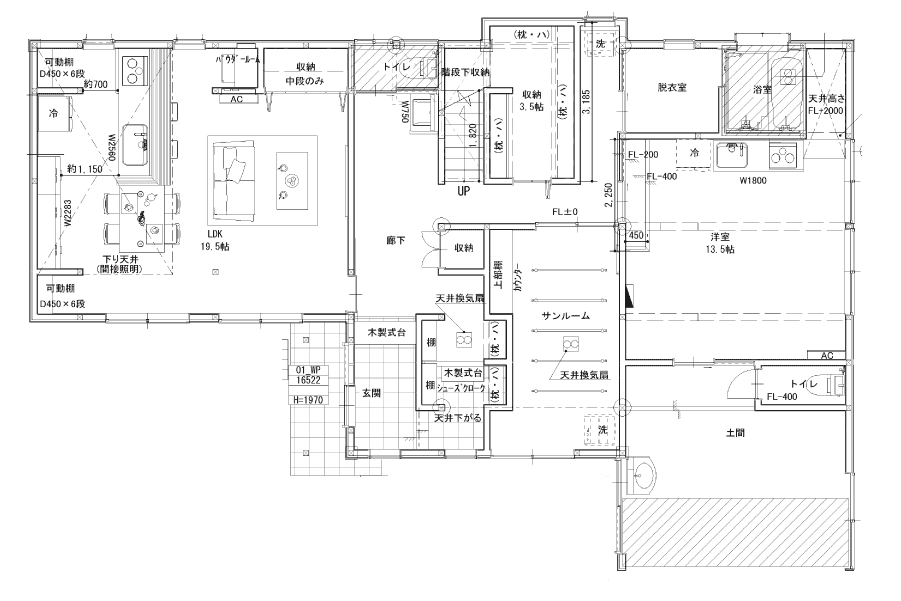
After

OWNER’S VOICE

新築みたいにきれいになって大満足です。工事前と工事中に、細かな変更にいろいろと対応してもらえたのも良かったです。特に現場の大工さんにとても良くしてもらって、『この人で良かった!』と声を大にして言いたいです
撮影: 利波由紀子
オリバーリフォームの施工事例はこちら
※コメントは承認制です





コメントをどうぞ