こだわりをひとつひとつ叶えた1階まるごとリノベーション
ウッド×ブラックの外壁のコンビネーションがシックなH様邸。リフォーム前はレンガ調だった外壁サイディングは、築25年余りを経て、遠目からでも傷みがわかるほどでしたが、今回のリフォームで新しく木調×石目調となり、新築のように生まれ変わりました。
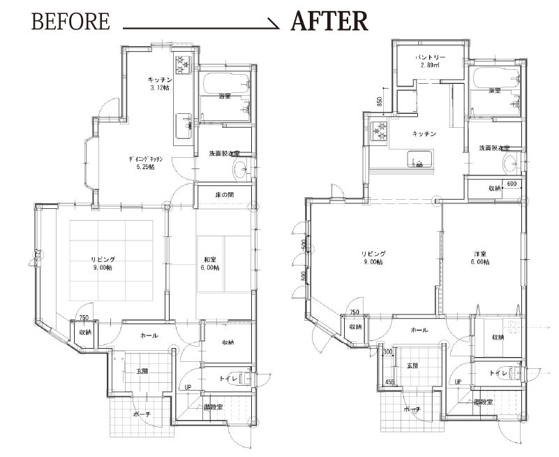
お子様が独立されご夫婦ふたり暮らしになられたこともあり、現在のライフスタイルにあったものにしたいと、1階部分をフルリフォーム。キッチンだったところをパントリーにし、ダイニングをなくして対面キッチンに。使用頻度の少なかった和室を洋室に改装しています。
難しいサイズに対応したシステムキッチンはハウステックの「マルーレ」。リフォームのデザインテーマに合わせて艶消しの石調パネルを採用。カウンタートップは色・質感を合わせたパネルを別メーカーより取り寄せて施工しました
小さなL型キッチンは、調理にかかる動線がほぼゼロ距離に。通路を確保しつつ対面キッチンを実現させるためには、間口が通常より小さい2.1mに収まるシステムキッチンが必要でした。該当するメーカーは2社しかなく、その中で食器洗浄機が希望の位置に付けられるハウステックのキッチンを採用しました。ダイニングの代わりになるカウンターは、通路の関係でキッチンの間口より小さくする必要があったため、ご主人がDIYでつくられました。外装と同じように内装も、木調と石目調でほぼ統一され、壁のキッチンパネルやカウンタートップも、色と質感を合わせたものを取り寄せて施工したものです。

和室だった部屋を洋室にリフォーム。仕切り扉は引き込み戸にしたので、二間を広く繋げることもできます
サブウェイタイル風のキッチンのアクセントウォールは、冷蔵庫を隠すために造作しました。好きな場所にシェルフを付けられるように下地を補強し、こちらもDIYでウッド×アイアンのシェルフを取り付けました。見せる収納とインダストリアル風のペンダントライトがおしゃれ感を引き立てています。
家を建てた時には、ほとんどこだわりがなかったというH様、住み続けるうちに理想の家のイメージが育っていたのかもしれません。部屋の扉と収納扉の柄を選び分けたり、マットな質感に統一した建材選びなど、小さなところに妥協せずにこだわり抜いた結果、上質な空間づくりに成功しました。
「リフォームして一番良かったことは、リフォーム前よりも生活していて気持ちがいいことです」と話すご夫妻。リフォーム後は、これまで興味のなかった庭づくりに取り組まれるようになったそうです。新しい住まいで新しい習慣が生まれ、これからの時間がさらに豊かに彩られていくようですね。
洗濯機をロールスクリーンで隠すアイデア。普段は開けておくことで収納も使いやすい
PLAN

小さなL型キッチンを中心にしたレイアウト。勝手口をなくしてパントリーを設け、冷蔵庫は造作した壁で隠しているため、キッチンをずっとキレイに保てます。
モデル: 池端忍 / ヘアメイク: アトリエNoel Hair Make Team / 撮影: dot DUCK株式会社
オリバーリフォームの施工事例はこちら
※コメントは承認制です













コメントをどうぞ